


Superior Granny Flat
29.9m²Arrives semi-assembled
5 x 6m
Cabin features:
- On-site connection
- 3 double-glazed sliding windows
- Double glazed bifold door
- Insulated walls + ceiling
- Vinyl or carpet flooring



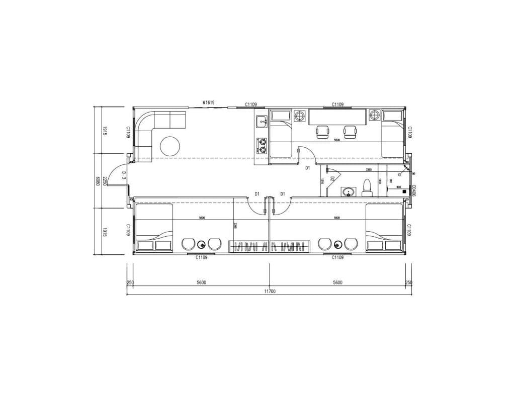
An amazing tiny house with 3 bedrooms and a living room connected to the kitchen. It can be fully self contained, just bring your furniture. It could suit as a separate unit or as an extension to your living space by as much as 70m2. And in addition, you can unfold it yourself or let us do it for you. Sounds good, isn’t it!? Come and have a look, we have a display unit both in Auckland and Christchurch.
GST Included

| Dimensions | Standard | w/ Deck + Roof |
|---|---|---|
| Height | 2500mm | 3165mm |
| Width | 6300mm | 6300mm |
| Length | 5850mm | 7850mm |
*Dimensions are for illustration purposes only. The actual product may vary in appearance, design, and features.



Swipe to see more...
























*Images are for illustration purposes only. The actual product may vary in appearance, design, and features.
Swipe to see more...

*Images are for illustration purposes only. The actual product may vary in appearance, design, and features.

Included features:
*Included at no additional cost.

Included features:
*Included at no additional cost.

3 Bedroom Unit70m²
Included in price:
GST Included
*Takes 14 weeks to build, 50% deposit required upfront. *This unit arrives folded. If you are going to unfold it yourself, we recommend having 2-4 people to assist. Roof and decking arrives as a kit set and its installation can take around 2 days with 2 people. If you would like us to unfold it for you, please contact us for a free quote (will depend on your location).
Experience the convenience of our delivery service across New Zealand for your 3 Bedroom Unit 70m². We offer various delivery options, including our own trailer for short distances and trusted professionals for longer journeys. Rest assured, your cabin will be handled with care. Inquire now for a tailored quote and anticipate your cabin's arrival.

Upgrade Your Portable Cabin with a Roof & Deck
Enhance your portable building with our optional roof and deck upgrade, providing additional comfort and functionality. Whether you need extra outdoor space to relax, work, or entertain, this feature adds both style and practicality.
Optional Upgrade: Roof & Deck – $10,000 incl. GST
* Note: Cabin, Roof, and Deck will arrive un-assembled. We can install it for you at an additional cost.
Related Cabins
Discover some of our other portable buildings and cabins.



Arrives semi-assembled
5 x 6m
Cabin features:






Arrives unassembled as kitset
5.9 x 6.6 m
Cabin features:



Arrives unassembled as kitset
6.3 x 7.8m
Cabin features: